更新时间:2023-08-09 17:18:02
更近清算了一下家里的厨房电器,发现传统的中式烹饪手法,许多都已经电器化了。煮饭交给电饭煲;油炸交给空气炸锅;炖汤交给电炖盅;甚至熬中药都有专门的电药壶。

不禁感觉到工业设计师的伟大,他们站在科研第一线,努力研发出新鲜热乎的科技产品,提高我们的生活品质。然而,空间规划师接过过他们手中的棒,下一步,要如何替这些新时代的产品规划出合适的空间?

常常有人抱怨那些鸡肋多余的家用小电器,占用了太多厨房空间,让本该更简便的厨房,变得更复杂。我赞同这些说法(这个时代,媚俗的设计实在太多),但心中也有一点不安:会不会是我们的厨房空间跟不上家电发展的速度啦?

中西厨分离的做法在现在的家庭中普遍起来,然而,还是有很多人不了解西厨的作用。西厨并不是多做一个厨房或者多一条吧台,而是利用厨房与餐厅之间的暧昧空间,集中收纳厨房电器和操作低油烟料理的地方。由于每个人的饮食和烹饪习惯不同,西厨的做法自然千差万别,今天来跟大家好好说说。
1.忠于传统美食,对西餐烹饪没兴趣
即便我们努力跟烤箱、咖啡机等西式家电划清界限,一转身还是难以抵挡豆浆机、微波炉、电火锅等中餐家电的诱惑。如果事先没有规划好相应的位置,这些家电就很容易占据厨房的台面,使有效空间得不到利用。

设置一个家电放置处将它们集中在一起,使用起来就很方便。微波炉、电饭煲等常用的家电放在中部的位置,并在柜体中预置电源。

上层可用来收纳电火锅、电磁炉等不常用的电器;下层可收纳与家电使用相关的物品,如杯碟、垃圾桶、咖啡豆和调味料、零食等物品,可根据实际情况选择推车或者抽屉等收纳的形式。(柜子的宽度可根据电器的数量和尺寸来控制)。

电饭煲等需要散热的家电,放在柜子中需要设置蒸汽导流板,不过简单一些的做法,也可以将它们放置在抽拉式的柜体中。


小家电的摆放相对自由,在有电源的位置就可以操作。厨房面积有限的情况下,也可以考虑将电饭煲、热水壶等家电放在厨房和餐厅之间的位置。采用这种方式,上菜盛饭的时候,可以邀请家人帮忙,也不会出现厨房里人挤人的情况。


2.对新潮家电感兴趣,喜欢尝试新事物,偶尔做些烘焙和西餐
更近喜欢烘焙的人越来越多了,常常能收到朋友寄来的亲手制作的小饼干,去别人家做客也不时也能享受到一杯加了奶泡的的拿铁,多亏了这些小家电。

不过,别看这些西式家电小巧不占地方,但却拥有惊人的“繁殖”能力。就拿烤箱来说,烤蛋糕需要搭配蛋糕模具,烤月饼需要月饼模具,做个豆沙馅儿还得搭个搅拌机…
这些成套的料理工具,如果没有好好收纳,用到的时候翻箱倒柜地找,很容易打消烹饪的积极性。

在厨房与餐厅之间的位置,将电器柜升级为开放橱柜,用来收纳小厨电和配套设备,餐桌也可作为临时中岛台面来使用。兴致来的时候能够快速进入料理的状态。



3.热爱烘焙,喜欢跟亲朋好友一起享受料理时光
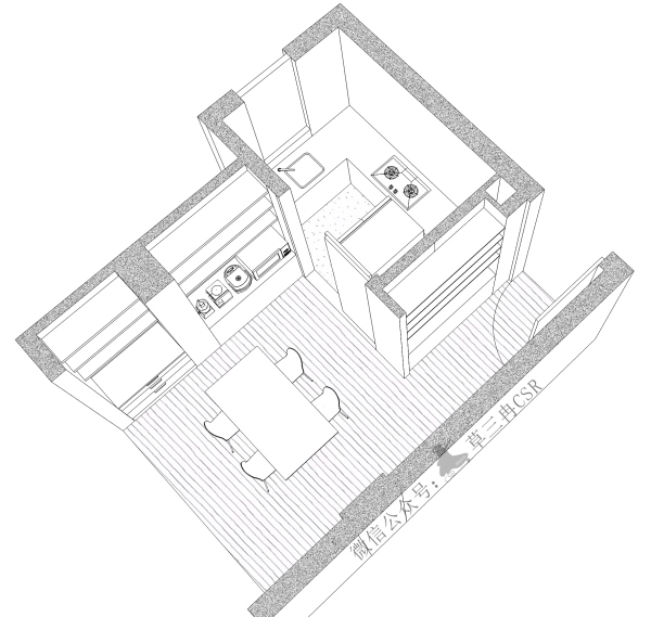
如果你是专业级别的西厨爱好者,则需要一个独立台面才能满足需求。下图在保留封闭中厨的情况下增加了西厨岛台,并且与餐桌连通,在烹饪时也能看到家中全景,家人过来帮忙也有充足的空间。

岛台水槽位于玄关边上,进门洗手也非常方便。买回来的食材也可直接放在岛台,大大缩短了家务动线。

将电饭煲和大米、餐具等放在西厨,就可以毫不费力地请家人帮忙。如果你希望小朋友能参与其中,记得把物品收纳在他们够得到的矮柜中。

我们生在电器时代,或许很难想象一百年前的厨房是什么样子。不过,当你试着把镜头从家里的小小厨房往外拉,升高再飞远,看到整个厨房的发展长河,你会看到历史是怎么从传统的柴火煮饭,发展到精致的整体式厨房。多么幸运,你出生在这个科技的时代。

当然,历史的脚步不会满足于此,它还在努力往前走,随着电气化的程度越来越高,我们的厨房在下一个十年会变成什么样子,谁也不知道。